824 Stone Creek DR Loudon, TN 37774

UPDATED:
Key Details
Property Type Single Family Home
Sub Type Single Family Residence
Listing Status Active
Purchase Type For Sale
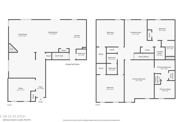
Square Footage 3,148 sqft
Price per Sqft $142
Subdivision Creekside Preserve
MLS Listing ID 1315731
Style Other
Bedrooms 4
Full Baths 3
Half Baths 1
HOA Fees $250/ann
Year Built 2022
Lot Size 7,405 Sqft
Acres 0.17
Property Sub-Type Single Family Residence
Source East Tennessee REALTORS® MLS
Property Description
Location
State TN
County Loudon County - 32
Area 0.17
Rooms
Other Rooms LaundryUtility, Great Room
Basement None
Dining Room Breakfast Bar
Interior
Interior Features Walk-In Closet(s), Pantry, Breakfast Bar
Heating Central, Natural Gas, Electric
Cooling Central Cooling
Flooring Carpet
Fireplaces Number 1
Fireplaces Type Gas Log
Fireplace Yes
Appliance Dishwasher, Disposal, Microwave, Range
Heat Source Central, Natural Gas, Electric
Laundry true
Exterior
Exterior Feature Windows - Vinyl
Parking Features Garage Door Opener, Attached, Main Level
Garage Spaces 2.0
Garage Description Attached, Garage Door Opener, Main Level, Attached
Total Parking Spaces 2
Garage Yes
Building
Lot Description Level
Faces I-75S to exit 72 towards Loudon. Turn left on TN-72E. Go 0.8 miles. Turn left on Queener. Turn Right on Hampton Pl Cir. Turn Left on Stone Creek Dr. Home will be on Left.
Sewer Public Sewer
Water Public
Architectural Style Other
Structure Type Vinyl Siding,Brick,Frame
Schools
Elementary Schools Loudon
Middle Schools Fort Loudoun
High Schools Loudon
Others
Restrictions No
Tax ID 040J A 079.00
Energy Description Electric, Gas(Natural)
GET MORE INFORMATION




